Lalla Carlsens gate 4 C - til salgs!

Moderne enebolig med en spennende fasadekombinasjon av tre, puss og metall. Beliggende i et veletablert boligstrøk på Øvre Vaulen i Stavanger, med en innholdsrik planløsning og flott utsikt mot Dalsnuten!

Til salgs - se annonsen på finn.no

God og romslig masterfløy i 2. etasje - god takhøyde!

Luftig stue i 2. etasje med luftebalkong og nydelig utsikt!

Plantegning 2. etasje.

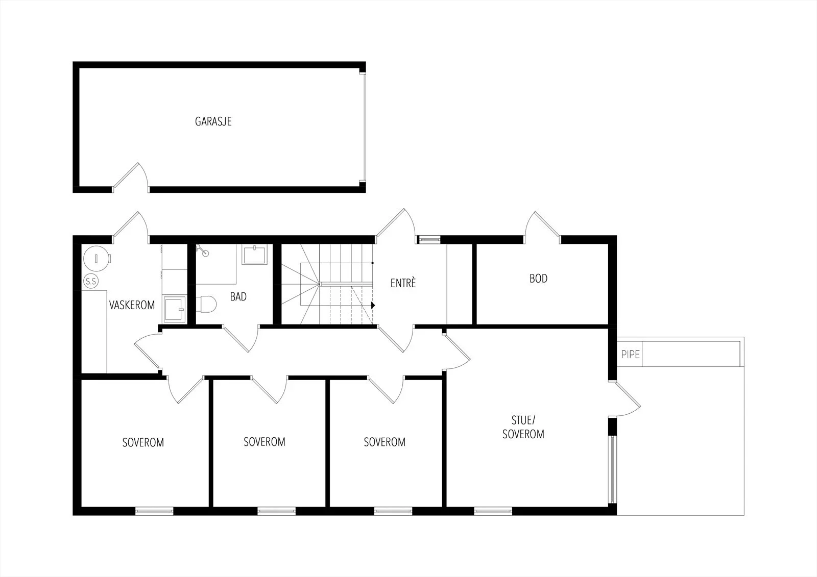
Plantegning 1. etasje.

Next
Next

Lalla Carlsens gate 4 D - solgt!